Floor Plan Designer
“I have been designing libraries that allow me to be more efficient in the design process. Thanks to my libraries and MacDraft I can produce an average of 160 floor plans a year”

My name is Alan J. Maki, owner of Beyond Basics Drafting & Design and I have been using MacDraft since 1985. Growing up in a family owned chain of Home Centers I have learned the building industry inside and out. I started my career doing marketing for our Home Centers and in 1990 I started my own Drafting & Design company. Since then I have been designing libraries that allow me to be more efficient in the design process. Thanks to my libraries and MacDraft I can produce an average of 160 floor plans a year working a 10-15 hour week.
What is my secret?
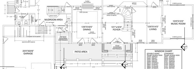
When building a plan I found myself using the same components time and time again (i.e. decks, porches, garages, family rooms, stairs and entrances). With MacDraft’s easy to use libraries I created all the different floor plan components needed to assemble a working set of drawings. These library items can be dragged and dropped into any drawing in seconds. It is designed for speed, so contains only what I need to produce fast floor plans, sectional views, foundation plans and elevations fast.
The real world:
In the real world all plans that go to permitting are 2D drawings . You’ll find a number of software programs available from $80-$2000 that offer 3D renderings however this is not necessary and it only complicates the design process. With MacDraft and my libraries I concentrate on what is really needed and so I produce drawings in a fraction of the time it takes other home designers.
MacDraft stands alone:
MacDraft is designed to make you feel like you are working on a drafting table. With easy to use tools that help with the layout process, you will be up and running in no time. It uses drag and drop libraries and allows you to build pages based on your needs that can be used time and time again. With other programs on the market for $1000's of dollars, MacDraft is still the one that reminds you of how drafting should be done.
Have your say and submit your study?
Join the microspot community and be part of an ever growing and inspired collection of professionals, home users and educational members. Send us your case study and have your say about your industry.
How to join the community >
Try MacDraft Pro for FREE
Why not give MacDraft Professional a go yourself and download the free trial. With this you’ll have access to all the features and benefits MacDraft has to offer, for 14 days.
Try MacDraft Professional for free >
Alan Maki - Floor Plan Designer
I have been designing libraries that allow me to be more efficient in the design process. Thanks to my libraries and MacDraft I can produce an average of 160 floor plans a year
My name is Alan J. Maki, owner of Beyond Basics Drafting & Design and I have been using MacDraft since 1985. Growing up in a family owned chain of Home Centers I have learned the building industry inside and out. I started my career doing marketing for our Home Centers and in 1990 I started my own Drafting & Design company. Since then I have been designing libraries that allow me to be more efficient in the design process. Thanks to my libraries and MacDraft I can produce an average of 160 floor plans a year working a 10-15 hour week.
What is my secret?
When building a plan I found myself using the same components time and time again (i.e. decks, porches, garages, family rooms, stairs and entrances). With MacDraft’s easy to use libraries I created all the different floor plan components needed to assemble a working set of drawings. These library items can be dragged and dropped into any drawing in seconds. It is designed for speed, so contains only what I need to produce fast floor plans, sectional views, foundation plans and elevations fast.
The real world:
In the real world all plans that go to permitting are 2D drawings . You’ll find a number of software programs available from $80-$2000 that offer 3D renderings however this is not necessary and it only complicates the design process. With MacDraft and my libraries I concentrate on what is really needed and so I produce drawings in a fraction of the time it takes other home designers.
MacDraft stands alone:
MacDraft is designed to make you feel like you are working on a drafting table. With easy to use tools that help with the layout process, you will be up and running in no time. It uses drag and drop libraries and allows you to build pages based on your needs that can be used time and time again. With other programs on the market for $1000's of dollars, MacDraft is still the one that reminds you of how drafting should be done.
Article star rating:
5 out of
5 with
4 rating